Just Listed

136 Newell Avenue, Middleton

Expressions of Interest

6 3 4 826 m2

Wake Up to Waves, Sea Breeze & Front-Row Beach Living!

Perfectly positioned front row and never to be built out, this expansive beachside residence captures sweeping ocean views and delivers the ultimate in lifestyle, technology and versatility. This is a true beach house escape that offers privacy, space and breathtaking scenery in one of the Fleurieu Peninsula’s most tightly held locations.

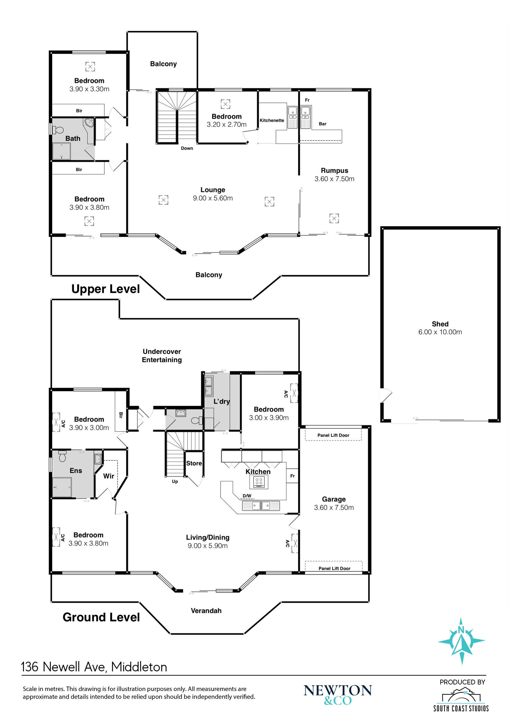
Thoughtfully designed across two generous levels, the home offers six bedrooms, three bathrooms and a dedicated games room, making it ideal for large families, multi-generational living or premium holiday letting.

The entire upper front balcony spans the full width of the home and has been recently rebuilt with premium Travertine tiling and new balustrades, professionally re-tanked and sealed creating a stunning platform to enjoy uninterrupted coastal panoramas.

Inside, the home features two internal kitchens – one on each level – providing outstanding flexibility. Upstairs flows beautifully through timber floors, while downstairs has been refreshed with brand new carpet and newly painted ceilings.

An enclosed indoor - outdoor entertaining room with a full bar connects seamlessly to the upper balcony, offering the perfect all-season gathering space.

  • Six generously sized bedrooms including a master with walk-in robe and two-way bathroom
  • Two full kitchens across both levels, ideal for flexible family living or dual accommodation
  • Downstairs kitchen features a central island cooktop by Miele, Ariston wall oven and Bosch dishwasher. Excellent bench space and storage designed for entertaining and everyday living
  • Upper-level indoor/outdoor entertaining room / games room with a built-in bar, perfect for hosting
  • Multiple linen and storage cupboards throughout
  • Outdoor shower - perfect for washing away sand and salt after a swim 
  • Drive-through single lock-up garage
  • Access to a huge double-width, extra-deep shed, ideal for boats, surf gear, cars or workshop space - including a shower & toilet

Premium Tech & Infrastructure:

  • Daikin ducted reverse-cycle air conditioning upstairs (web controlled)
  • Daikin split systems downstairs (web controlled)
  • Massive 12kW solar system with 10kW GoodWe inverter and web monitoring
  • 3-phase power to the property
  • NBN Fibre to the Premises
  • Fully automated B-hyve irrigation system with app control
  • Fully monitored UltraConnect alarm system with app control
  • Remote-control roller doors to front and rear (web controlled)
  • Full Wi-Fi coverage throughout main house and shed

Wake up to the sound of waves and the smell of salt air, with direct access to one of South Australia’s most loved stretches of coastline. This is a true front-row beach house with uninterrupted views that can never be built out.

  • Approx. 1 hour 15 minutes to Adelaide CBD
  • Approx. 25 minutes to McLaren Vale
  • Approx. 15 minutes to Victor Harbor

Investment & Holiday Let Potential:

This property has been successfully operated as a high-performing holiday rental, offering strong returns and ongoing demand. For the new owner, the opportunity exists to seamlessly continue this income stream, or to enjoy the flexibility of using it as a dual-living holiday home for friends and family while still generating revenue.

This is where beach living becomes your everyday reality. Wake to the sound of waves, step out onto your balcony with a morning coffee and spend your days swimming, walking the shoreline or watching the surf roll in. With uninterrupted ocean views, sea breezes through the home and space for family and friends to gather, this property delivers the relaxed coastal lifestyle so many dream of but few secure.

Whether it becomes your permanent seaside escape or a treasured holiday base for generations, this is a home where memories are made, sunsets are a daily ritual and the beach is always just footsteps from your door.


Note: Furniture Items will be included in the sale of the home. Please speak with the agent for a detailed list of included items.

SPECIFICATIONS

CT - 5517 | 793

Year Built - 1999

Council Rates - $TBC 

ESL - $TBC

Council – Alexandrina Council  

All information provided has been obtained from sources we believe to be accurate, however, we cannot guarantee the information is accurate and we accept no liability for any errors or omissions (including but not limited to a property's land size, floor plans and size, building age and condition). Interested parties should make their own enquiries and obtain their own legal and financial advice.

 

Features

Balcony Water frontage Bar Beach frontage Ocean views Close to beach
Make an Offer
6 3 4 826 m2

Details

Address 136 Newell Avenue, Middleton
Price Expressions of Interest
Property Type Residential
Property ID 391
Category House
Land Area 826 m2

Tools

Share This Property