Sold

68 Seagull Ave, Chiton

SOLD

5 2 5 835 m2

Stunning Seaside Escape: Masterclass of Architectural Brilliance.

The pinnacle of beachside bliss and a showcase of architectural precision, 68 Seagull Avenue – a breathtaking oasis of flawless interior design sweeping over three levels of light-filled, lifestyle finesse – captures an enigmatic entertainer of unrivalled South Coast luxury.

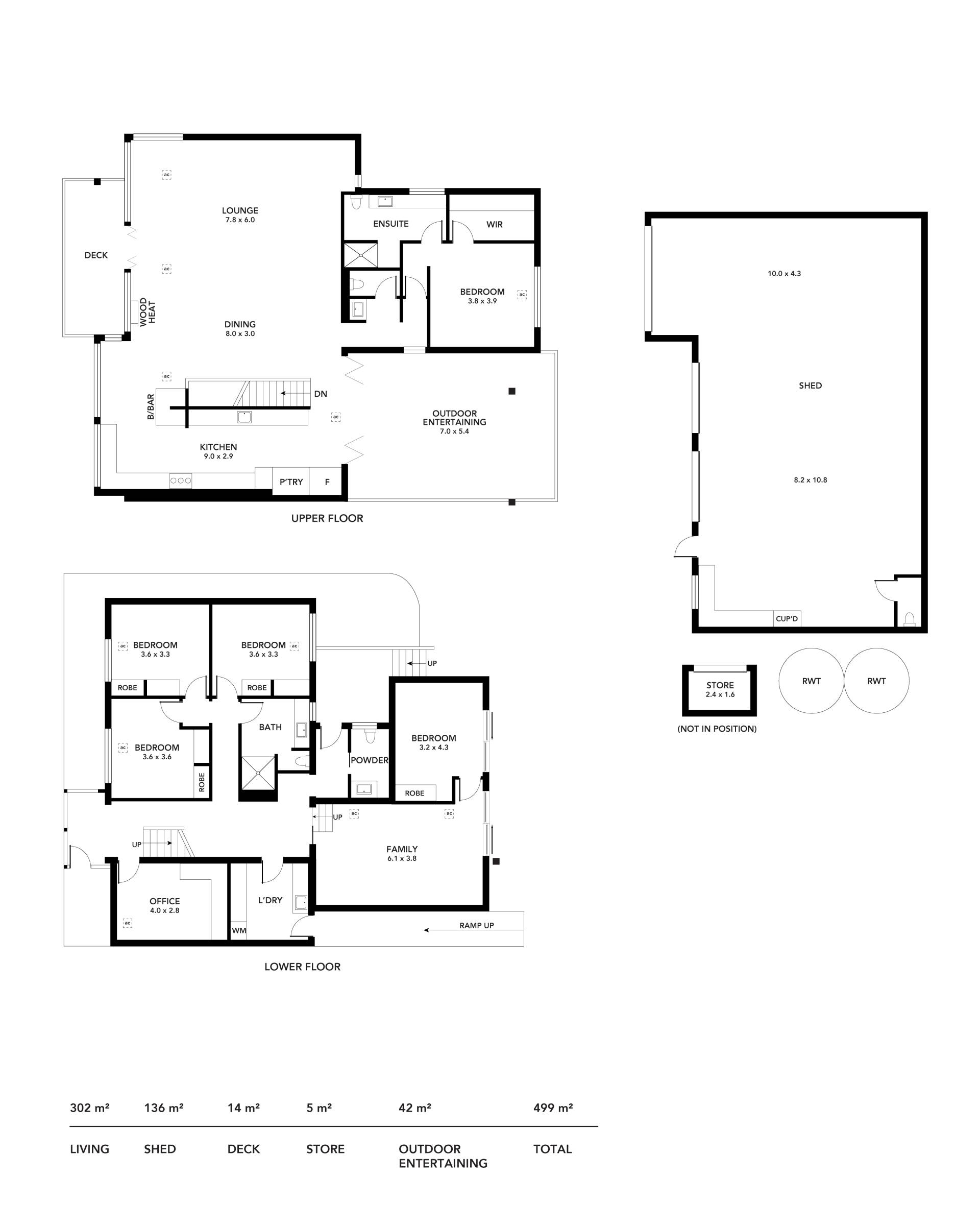
Epitomising the seaside senses, the stunning upper level sets the standard with floor-to-ceiling gallery windows running the full width of the property letting you soak in spectacular vistas, while a cracking combustion fireplace is primed to warm hands, hearts and winter nights. Headlined by the gourmet chef’s zone flourishing with stone bench tops and bar seating for casual eats and good conversation, and where bi-fold glass doors create a seamless extension to the spacious decked alfresco with a background of picturesque Foothills – discover a medley of natural textures and earthy tones ready to ground you in rare country-coastal magic as you wine and dine, no matter the season or reason.

Revealing an impressive 5-bedroom footprint (4 downstairs and the master positioned upstairs for supreme peace and privacy), including a ground level family room perfect for giving the kids their own space to rule and roost, as well as an inspiring home office letting you tick-off the work checklist as you stay in complete holiday mode; this brilliant abode leaves no stone unturned.

Manicured pet-friendly lawns, sunbathed and framed in drought-tolerant clusters of cacti, on-trend aggregate concrete drive and pathways, and a towering garage built to handle cars, boats, caravans and all your weekend watersport toys too… seizing this sublime urban sanctuary a tiptoe from the water’s edge and a leisure stroll to Chiton Rocks SLSC, as well as easy reach to vibrant Victor and Port Elliot for the best beach enclaves in this iconic area.

THE DEAL

  •  
  • Incredible open-plan living, dining and designer kitchen combining for one breathtaking entertaining hub with spectacular ocean and Foothills views in one sweeping glance 

    Luxurious gourmet kitchen featuring stone bench tops, breakfast bar and bar seating, all the room for helping hands, abundant contrast cabinetry and cupboards, and sleek premium appliances 

    Bi-fold doors opening to a superb all-weather alfresco for seamless indoor-outdoor hosting, as well as ocean-facing, fresh air balcony 

    Beautiful upstairs master bedroom with gallery windows and picturesque hills’ views, WIR and luxe ensuite spilling with natural light, floating timber cabinetry and full-height statement tiles 

    Lovely ground floor family room with glass sliders stepping out to the sunbathed backyard of lush lawns and established greenery 

    4 generously-sized bedrooms, all featuring BIRs and 3 with desks, as well as dedicated home office/study 

    Equally designer family bathroom, 2 guest WC – one upstairs, one down, family-friendly laundry 

    Powerful ducted AC throughout for year-round climate comfort, and cosy combustion wood heater helming the upstairs living 

    Industrial chic and coastal-inspired frontage with more lush lawns and aggregate concrete driveway 

    Huge garage with internal workshop and WC, and room for boats, cars, caravans and all you’re fishing and watersport toys 

    Walk in walk out scenario available, no need to go furniture shopping if you already like what you see. 

THE LOCATION

  • A stone’s throw to the soft sands and surfing swell of Chiton Beach

  • A welcome stroll to Chiton Rocks SLSC and the locals’ favourite The Chiton Restaurant

  • Around the corner from ALDI, Coles and Bunnings for all your household needs and shopping essentials

  • Just 7-minutes to the vibrant heart of Victor Harbor for more café, restaurant and boutique options, and a quick 6 to the quaint and cosy cove of Port Elliot

  • Less than an hour’s drive from the metro south, and on the doorstep of McLaren Vale’s iconic wine country

PROPERTY FACILITIES 

  • In-built Krix wall speakers & Denon Amp 
  • In-built coffee machine (Fisher & Paykel)
  • Wiring in ceilings for future speakers to upstairs living & outdoor deck areas 
  • Wired internet & HDMI to all bedrooms 
  • Firewood storage with remote auto door 
  • Optional app connected appliances 
  • Solar Hot Water System 
  • Ducted air conditioning 
  • Heating - ADF Linea Wood Fire & Ducted 
  • Front security camera 
  • Filtered water to entire home 
  • 2 x 10,000 L rainwater tanks plumbed to entire home 
  • 13 KW solar system
  • Gas cook top, electric oven (Fisher & Paykel)
  • Dishwasher (Asko)
  • Air conditioner (Daikin) 
  • Irrigation Systems - Pop up front (auto) back manual

SPECIFICATIONS 

CT - 5662 | 202

LAND SIZE - 835 sqm 

YEAR BUILT - 1968 original, 2021 new construction

COUNCIL - Alexandrina 

COUNCIL RATES - $4,023 per annum 

EMERGENCY SERVICES LEVY - $174

DESIGNER / BUILDER - Advanced Building Constructions 

 

All information provided has been obtained from sources we believe to be accurate, however, we cannot guarantee the information is accurate and we accept no liability for any errors or omissions (including but not limited to a property's land size, floor plans and size, building age and condition). Interested parties should make their own enquiries and obtain their own legal and financial advice.

Features

Balcony Deck Smoke Alarms Ocean views Level Block Water Tank Secure Parking Solar Panels Solar Hot Water Built-in wardrobe Shed/stable Air conditioning Dishwasher Reverse Cycle Air Conditioning Floorboards
5 2 5 835 m2

Details

Address 68 Seagull Ave, Chiton
Price SOLD
Property Type Residential
Property ID 228
Category House
Land Area 835 m2

Tools

Share This Property