Sold

8 Indigo Way, Hayborough

SOLD

4 2 3 496 m2

A Home For The Whole Family-Room For A Caravan.

Private Appointment Available. Please Phone Carolyn Shaw 0423 134 646.

This beautifully modern contemporary charmer – spilling with natural light and nestled in a recently developed pocket of Hayborough right across from a leafy playground and reserve – captures superb South Coast living where welcome neighbourly vibes merge with a sought-after seaside experience.

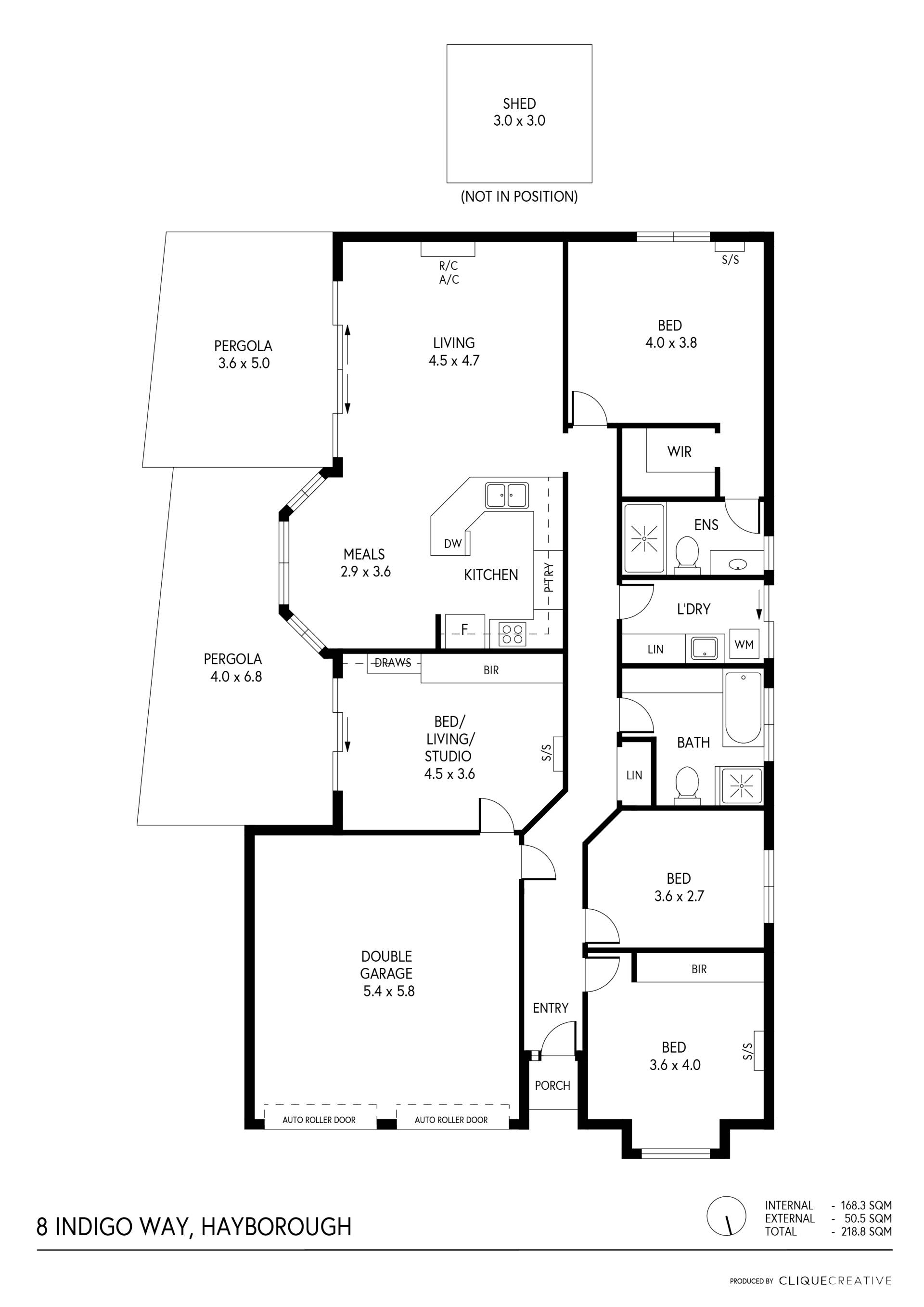
Picture-perfect for those in search of family-friendly functionality, 8 Indigo Way delivers a delightful 3-bedroom footprint, separate studio, 2nd living room or handy 4th bedroom option, and a brilliant open-plan entertaining hub headlined by the spacious foodie’s zone ready to serve, scan and socialise while whipping-up culinary deliciousness morning or night.

Together with a sweeping timber decked alfresco embracing the salty fresh air people flock to this iconic region for, hints of ocean views for a scenic backdrop to your sunny lunches, as well as a host of modern inclusions, from bill-busting solar-system, an array of powerful AC units for year-round comfort, and a wide block with room to park your caravan or fishing boat… this feature-packed home provides the perfect base for the brightest of futures.

FEATURES WE LOVE

  • Light-filled open-plan lounge, dining and kitchen connecting seamlessly to the huge outdoor entertaining zone featuring gorgeous timber decking and sweeping pergola

  • Modern chef’s kitchen flush with fantastic bench top space, abundant cabinetry and cupboards, pendant lighting, and gleaming stainless appliances including dishwasher

  • Generous master bedroom featuring AC, WIR and private ensuite

  • 3 additional spacious bedrooms, two with BIRs and AC, as well as one being an excellent home office, 2nd living room or 4th bedroom

  • Bright and airy main bathroom featuring separate shower and relaxing bath

  • Family-friendly laundry with storage, and 20-panel solar system for lower energy bills

  • Neat, easy-care gardens, sunny rear alfresco area, side gate entry with room for caravan or boat, and double garage behind a neat, solid brick frontage

  • Built in 2015

LOCATION

  • Across the road from the manicured and leafy green Starfish Reserve and playground, and around the corner from the local YMCA and Aquatic Centre

  • Moments to ALDI, Coles and Bunnings for all your home essentials at arm’s reach

  • Only 1.6km to the water’s edge for a picture-perfect summer lifestyle

  • Wonderfully positioned 6-minutes to both bustling central Victor, as well as the quaint and cosy Port Elliot

SPECIFICATIONS 

CT - 6048 | 683

Land Size - 496 sqm

Council - Victor Harbor

All information provided has been obtained from sources we believe to be accurate, however, we cannot guarantee the information is accurate and we accept no liability for any errors or omissions (including but not limited to a property's land size, floor plans and size, building age and condition). Interested parties should make their own enquiries and obtain their own legal and financial advice.

 

Features

Outdoor entertainment area Smoke Alarms Solar Panels Built-in wardrobe Air conditioning Split System Air Conditioning Garage Remote Ocean views Fenced
4 2 3 496 m2

Details

Address 8 Indigo Way, Hayborough
Price SOLD
Property Type Residential
Property ID 196
Category House
Land Area 496 m2

Tools

Share This Property